Perfis modulares e acessórios
Base para fixação de rodízio central com apoio
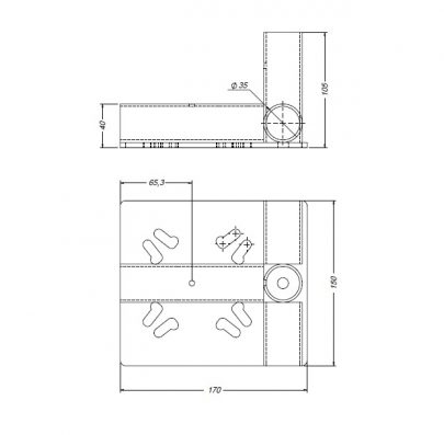
FKS-053 / FKS-053 ESD
descrições técnicas
Base para fixação de rodízio central com apoio (preto RAL 8020)
SAE-1020
Base para rodízio linha L-10/L-12/L-14
OBS: Opção com acabamento zinco branco e propriedades ESD;
Faça uma solicitação
Faça uma solicitação